![]() |
![]() |
![]() |
El nostre objectiu principal és la satisfacció dels nostres clients, i és per això que des del primer moment els oferim un tracte personalitzat assessorant-los segons les seves necessitats i adaptant-nos al seu pressupost.
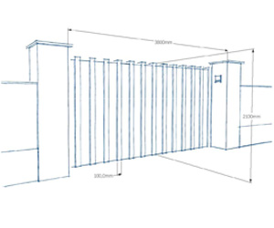
Juntament amb el pressupost , també entreguem un dibuix 3d del treball a realitzar, per poder mostrar al client com quedaria la feina abans de la seva fabricació.




